Skip to main content
  1. Mount assembled air regulator to side of electrical cabinet using supplied M5 hardware (SHCS, belleville spring washer, flat washer and nut). Use dimensions given to ensure clearance of knockout plate for electrical connections.
    • Mount assembled air regulator to side of electrical cabinet using supplied M5 hardware (SHCS, belleville spring washer, flat washer and nut).

    • Use dimensions given to ensure clearance of knockout plate for electrical connections.

    • Remove knockout plate and replace with cable entry plate.

  2. Attach turret mounting base to cross slide using the supplied M10 hardware and M10 T-slot nuts. Torque to 27ft/lbs. Base must be at least 1" from edge of cross slide to avoid turret interference with sliding door.
    • Attach turret mounting base to cross slide using the supplied M10 hardware and M10 T-slot nuts. Torque to 27ft/lbs.

    • Base must be at least 1" from edge of cross slide to avoid turret interference with sliding door.

    • Check flatness of base to confirm it is within 0.001 T.I.R.

  3. Attach turret to mounting base using the supplied M12 hardware (SHCS, split lock washers & flat washers) and lightly snug fasteners allowing ability to tram in turret. DO NOT tighten! Tram in turret to 0.0005" Tram in turret to 0.0005"
    • Attach turret to mounting base using the supplied M12 hardware (SHCS, split lock washers & flat washers) and lightly snug fasteners allowing ability to tram in turret. DO NOT tighten!

    • Tram in turret to 0.0005"

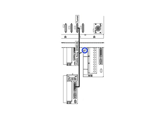
  4. Mount Delta Drive to cabinet using supplied M4 hardware (SHCS & flat washer). Connect logic cable from Delta Drive to Computer Module (Item 47). Zip tie 25 pin jumper to drive cable for turret as shown in image 3.
    • Mount Delta Drive to cabinet using supplied M4 hardware (SHCS & flat washer).

    • Connect logic cable from Delta Drive to Computer Module (Item 47).

    • Zip tie 25 pin jumper to drive cable for turret as shown in image 3.

    • Jumper is to be used when turret is removed to prevent a fault on the Pendant.

  5. Re-locate coolant manifold to edge of carriage on 1630 and 1845. Add wire coil cover to coolant hose (turret to coolant manifold).
    • Re-locate coolant manifold to edge of carriage on 1630 and 1845.

    • Add wire coil cover to coolant hose (turret to coolant manifold).

    • Add coolant shutoff valve to coolant hose.

    • Coolant hose may need to be trimmed slightly so it is roughly the same length as the wire coil cover.

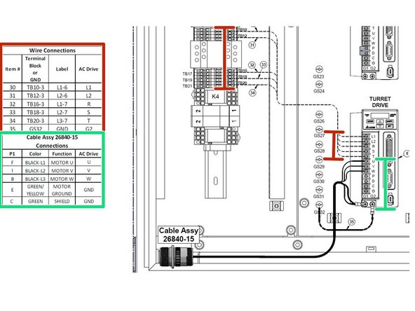
  6. Slide internal power and encoder cables through cable entry plate into the electrical cabinet, use supplied M3 hardware to attach flange to plate. Connect internal power cable to Delta Drive as shown in wiring table. Connect Motor circuit and Control circuit wires as shown in wiring table.
    • Slide internal power and encoder cables through cable entry plate into the electrical cabinet, use supplied M3 hardware to attach flange to plate.

    • Connect internal power cable to Delta Drive as shown in wiring table.

    • Connect Motor circuit and Control circuit wires as shown in wiring table.

    • Connect Input Air Pressure cable and Output Turret Unclamp cable into respective ports on computer module.

    • Connect 9 pin logic cable into Delta Drive.

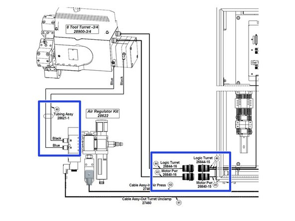
  7. Attach elbow (item 20) to coolant manifold and then attach coolant hose with shutoff valve (item 18) to elbow. Attach air lines to turret.
    • Attach elbow (item 20) to coolant manifold and then attach coolant hose with shutoff valve (item 18) to elbow.

    • Attach air lines to turret.

    • Route cables and hoses underneath bed toward rear of machine as per instruction in image 1.

    • Connect External Power and Logic Cables into connections on electrical cabinet. Connect air lines from turret to regulator assembly.

  8. Once supply air is installed, set air pressure to 60 PSI, find the adjustment screw on bottom of pressure switch. If LED on computer module labeled "AIR-IN PRESS" is off, rotate adjustment screw until LED turns on. If LED is on, rotate adjustment screw in opposite direction until LED is off. Once pressure switch is set, adjust incoming air pressure back to between 80-90 PSI. Once pressure switch is set, adjust incoming air pressure back to between 80-90 PSI.
    • Once supply air is installed, set air pressure to 60 PSI, find the adjustment screw on bottom of pressure switch. If LED on computer module labeled "AIR-IN PRESS" is off, rotate adjustment screw until LED turns on. If LED is on, rotate adjustment screw in opposite direction until LED is off.

    • Once pressure switch is set, adjust incoming air pressure back to between 80-90 PSI.

  9. Select SETUP then TOOL GROUP. Select 8 POS, then RETURN, HOME TURRET and then GO. Make sure door is closed, turret will not move if door is open. Turret will begin to rotate slowly to location #1.
    • Select SETUP then TOOL GROUP.

    • Select 8 POS, then RETURN, HOME TURRET and then GO. Make sure door is closed, turret will not move if door is open.

    • Turret will begin to rotate slowly to location #1.

    • Enter desired TURRET LOC, INC SET and then GO key. Make sure door is closed, turret will not move if door is open.

  10. Tram in turret to within 0.0005". Face off a piece of cylindrical stock at least 4" long and 2" in diameter. Measure the material that is left untouched, divide by 2 and subtract no more than 0.005". Select shim stock value nearest to value without exceeding and install. Ideal final height should be between +0.002" & -0.005".
    • Tram in turret to within 0.0005".

    • Face off a piece of cylindrical stock at least 4" long and 2" in diameter. Measure the material that is left untouched, divide by 2 and subtract no more than 0.005". Select shim stock value nearest to value without exceeding and install. Ideal final height should be between +0.002" & -0.005".

    • Re-mount and tram in turret within 0.0005" and torque fasteners down to 40ft/lbs.

Finish Line

Dozuki System

Member since: 9/24/09

14 Guides authored

0 Comments

Add Comment



View Statistics:

Past 24 Hours: 1

Past 7 Days: 4

Past 30 Days: 12

All Time: 573